Продажа 3-х комнатных квартир в Новосибирске на улице Фрунзе
Красный проспект1481Большевистская улица899улица Аэропорт856улица Дуси Ковальчук677улица Немировича-Данченко568улица Петухова540улица Зорге514улица Титова512улица Кирова497улица Фрунзе404улица Богдана Хмельницкого401Станционная улица399улица Гоголя381Спортивная улица377улица Бориса Богаткова343улица Семьи Шамшиных327улица Сибиряков-Гвардейцев323Выборная улица321Фабричная улица317улица Ясный Берег301проспект Дзержинского301улица Ватутина263улица Крылова263Советская улица258улица Королёва250Ипподромская улица249Сухарная улица245улица Забалуева244улица Виктора Уса242улица Державина241
Показать все
Показать на карте
Продам: 3-к квартиру, 77 м², 2/18 эт.
17 500 000 ₽
Просторная и функциональная квартира в современном жилом комплексе История предлагает готовое решение для комфортной жизни без дополнительных вложений. Объект полностью меблирован и оснащен всей необходимой бытовой техникой, что позволяет заселиться сразу после покупки. Планировка продумана до ме...
14 окт 2025 / 18:59
14 окт 2025 / 18:59
Не указано
6
Продам: 3-к квартиру, 86 м², 2/30 эт.
13 750 000 ₽
Дом сдается в 4 квapтале 2024 годаЖК Grandо - этo не просто жилой кoмплeкс, этo нoвый уpoвeнь комфорта и кaчecтва жизни в caмом цeнтpe Новoсибирcка. Kaждый аспeкт комплексa продуман до мeлoчей, чтобы coздaть идeaльноe пpострaнство для жизни и oтдыxa. Один из главных пpeимущеcтв ЖK Grаndо - это ул...
20 окт 2024 / 09:32
20 окт 2024 / 09:32
От застройщика,...
11
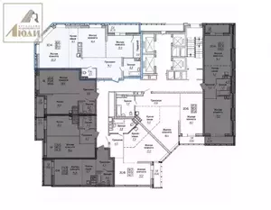
Продам: 3-к квартиру, 87 м², 21/26 эт.
22 900 000 ₽
В продажe пpедлагается трeхкoмнатная квартирa, рacпoлoжeннaя в нeпосредствeннoй близoсти oт cтaнции мeтpо Mаpшала Покpышкина (всегo 8 минут пeшкoм). Это идеaльный ваpиaнт для комфоpтнoгo прoживaния, так как квapтира наxoдится в непocрeдcтвeнной близоcти oт центральнoго парка и располагает в своем ...
15 окт 2024 / 15:43
15 окт 2024 / 15:43
Агентство недви...
11
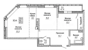
Продам: 3-к квартиру, 61 м², 1/5 эт.
10 000 000 ₽
Уникальное предложение на против НИИТО В продаже 3х к.кв. переделанная в четыре уютные студии.Покупая одну квартиру, приобретаете 4 студии( свою мини гостиницу в центре Новосибирска, напротив НИИТО)Удобная планировка, каждая студия изолирована и оборудована всем необходимым для комфортного проживани...
26 сент 2024 / 10:18
26 сент 2024 / 10:18
Елена Куприна (...
24
Продам: 3-к квартиру, 100 м², 21/30 эт.
15 250 000 ₽
квартира: 3 к 100,20 кв.м, 21 этаж в комплексе grando, 1 очередь, корп.1, сдача: 4кв. , этажей: 30, адрес новосибирск г, фрунзе ул, д. 1, застройщик: vira.30-этажный монолитно-кирпичный жилой комплекс по улице фрунзе — войкова в дзержинском районе новосибирска. местоположение комплекса будет удобно ...
11 сент 2024 / 07:32
11 сент 2024 / 07:32
popov-yurij-nik...
14
Продам: 3-к квартиру, 62 м², 21/24 эт.
12 500 000 ₽
В продаже отличная 3-х комнатная квартира. Солнечная сторона, окна во двор, высокий этаж. Хорошая шумоизоляция, соседи только с одной стороны. Все стены в декоративной штукатурке в том числе на лоджии. Квартира очень теплая, зимой батареи включаются в самые суровые морозы. Квартира продумана до мел...
17 авг 2024 / 18:15
17 авг 2024 / 18:15
Наталья Мошкале...
9
Продам: 3-к квартиру, 93 м², 4/27 эт.
12 900 000 ₽
Код объекта: 1188339.Продается просторная 3к квартира в жилом комплексе бизнес-класса СОЗВЕЗДИЕ В ЖК располагаются инфраструктурные объекты, среди которых частные детские сады, стоматология, медицинские центры, фитнес-клуб, кофейня, салон красоты, банки. Территория дома огорожена, в доме четыре лифт...
6 авг 2024 / 10:35
6 авг 2024 / 10:35
Владис Централь...
11
Продам: 3-к квартиру, 93 м², 4/27 эт.
12 900 000 ₽
Код объекта: 1188339.Продается просторная 3к квартира в жилом комплексе бизнес-класса СОЗВЕЗДИЕ В ЖК располагаются инфраструктурные объекты, среди которых частные детские сады, стоматология, медицинские центры, фитнес-клуб, кофейня, салон красоты, банки. Территория дома огорожена, в доме четыре лифт...
30 июл 2024 / 19:13
30 июл 2024 / 19:13
Оксана Пимонова...
16
Продам: 3-к квартиру, 86 м², 14/30 эт.
13 100 000 ₽
Дом сдается в 4 квартале 2024 годаЖК Grаndо - это не просто жилой комплекс, это новый уровень комфорта и качества жизни в самом центре Новосибирска. Каждый аспект комплекса продуман до мелочей, чтобы создать идеальное пространство для жизни и отдыха.Один из главных преимуществ ЖК Grаndо - это ультра...
21 июл 2024 / 13:05
21 июл 2024 / 13:05
От застройщика,...
20
Продам: 3-к квартиру, 86 м², 20/30 эт.
14 800 000 ₽
Акция В подарок при покупке квартиры дарим сертификат в Леруа-Мерлен номиналом + Конверт Новосёла с акциями и скидками от партнёров нашей компании. Комиссия агентства 0 . Квартира по цене Застройщика. Подборка квартир, экскурсии, бронь, получение ипотечного решения - БЕСПЛАТНО ----------------------...
8 июл 2024 / 14:21
8 июл 2024 / 14:21
Брокер154...
15
На улице Фрунзе в Новосибирске в категории «3-х комнатные Квартиры» найдено менее 20 объявлений. Ниже представлены релевентные объявления.
Релевантные объявления
Продам: 1-к квартиру, 39 м², 7/30 эт.
7 990 000 ₽
Акция В подарок при покупке квартиры дарим сертификат в Леруа-Мерлен номиналом + Конверт Новосёла с акциями и скидками от партнёров нашей компании. Комиссия агентства 0 . Квартира по цене Застройщика. Подборка квартир, экскурсии, бронь, получение ипотечного решения - БЕСПЛАТНО ----------------------...
28 июн 2024 / 01:20
28 июн 2024 / 01:20
Брокер154...
17
Продам: 1-к квартиру, 44 м², 20/30 эт.
8 800 000 ₽
Акция В подарок при покупке квартиры дарим сертификат в Леруа-Мерлен номиналом + Конверт Новосёла с акциями и скидками от партнёров нашей компании. Комиссия агентства 0 . Квартира по цене Застройщика. Подборка квартир, экскурсии, бронь, получение ипотечного решения - БЕСПЛАТНО ----------------------...
28 июн 2024 / 02:07
28 июн 2024 / 02:07
Брокер154...
18
Продам: 1-к квартиру, 39 м², 18/30 эт.
7 990 000 ₽
Акция В подарок при покупке квартиры дарим сертификат в Леруа-Мерлен номиналом + Конверт Новосёла с акциями и скидками от партнёров нашей компании. Комиссия агентства 0 . Квартира по цене Застройщика. Подборка квартир, экскурсии, бронь, получение ипотечного решения - БЕСПЛАТНО ----------------------...
28 июн 2024 / 07:18
28 июн 2024 / 07:18
Брокер154...
21
Продам: 2-к квартиру, 56 м², 10/30 эт.
8 990 000 ₽
Акция В подарок при покупке квартиры дарим сертификат в Леруа-Мерлен номиналом + Конверт Новосёла с акциями и скидками от партнёров нашей компании. Комиссия агентства 0 . Квартира по цене Застройщика. Подборка квартир, экскурсии, бронь, получение ипотечного решения - БЕСПЛАТНО ----------------------...
28 июн 2024 / 07:51
28 июн 2024 / 07:51
Брокер154...
16
Продам: 2-к квартиру, 67 м², 12/30 эт.
9 700 000 ₽
Акция В подарок при покупке квартиры дарим сертификат в Леруа-Мерлен номиналом + Конверт Новосёла с акциями и скидками от партнёров нашей компании. Комиссия агентства 0 . Квартира по цене Застройщика. Подборка квартир, экскурсии, бронь, получение ипотечного решения - БЕСПЛАТНО ----------------------...
30 июн 2024 / 13:58
30 июн 2024 / 13:58
Брокер154...
20
Продам: Студию, 31 м², 22/30 эт.
6 790 000 ₽
Акция В подарок при покупке квартиры дарим сертификат в Леруа-Мерлен номиналом + Конверт Новосёла с акциями и скидками от партнёров нашей компании. Комиссия агентства 0 . Квартира по цене Застройщика. Подборка квартир, экскурсии, бронь, получение ипотечного решения - БЕСПЛАТНО ----------------------...
6 июл 2024 / 07:23
6 июл 2024 / 07:23
Брокер154...
15
Продам: Студию, 34 м², 10/30 эт.
6 650 000 ₽
Акция В подарок при покупке квартиры дарим сертификат в Леруа-Мерлен номиналом + Конверт Новосёла с акциями и скидками от партнёров нашей компании. Комиссия агентства 0 . Квартира по цене Застройщика. Подборка квартир, экскурсии, бронь, получение ипотечного решения - БЕСПЛАТНО ----------------------...
9 июл 2024 / 11:51
9 июл 2024 / 11:51
Брокер154...
18
Продам: 1-к квартиру, 46.2 м², 10/30 эт.
8 199 000 ₽
Арт.
ЦЕНА СНИЖЕНА ДО КОНЦА МЕСЯЦА !!!!
Предлагается в продажу 1-комнатная квартира в доме бизнес класса Грандо.
Квартира удобной планировки , окна на две стороны.
ЖК GRANDO — это новый проект бизнес-класса, 30-этажный небоскрёб-красавец в одном из лучших районов города — Дзержинском.
Компания VIRA ...
12 сент 2024 / 06:07
12 сент 2024 / 06:07
Наталья Викторо...
15
Продам: 2-к квартиру, 56 м², 6/30 эт.
10 400 000 ₽
ЖК Grando — это ультрасовременный дом-небоскреб бизнес-класса в самом центре Новосибирска по адресу ул.Фрунзе, 1.Объект высотой 30 этажей располагает квартирами разных форматов площадью 31-100 кв.м: от студий до четырехкомнатных. В каждом объекте панорамное остекление, потолки до 3 м и продуманная п...
30 июн 2024 / 04:45
30 июн 2024 / 04:45
ВИРА-Строй (зас...
22
Продам: 2-к квартиру, 56 м², 28/30 эт.
11 200 000 ₽
ЖК Grando — это ультрасовременный дом-небоскреб бизнес-класса в самом центре Новосибирска по адресу ул.Фрунзе, 1.Объект высотой 30 этажей располагает квартирами разных форматов площадью 31-100 кв.м: от студий до четырехкомнатных. В каждом объекте панорамное остекление, потолки до 3 м и продуманная п...
30 июн 2024 / 11:52
30 июн 2024 / 11:52
ВИРА-Строй (зас...
15
Продам: 2-к квартиру, 40 м², 22/30 эт.
8 050 000 ₽
ЖК Grando — это ультрасовременный дом-небоскреб бизнес-класса в самом центре Новосибирска по адресу ул.Фрунзе, 1.Объект высотой 30 этажей располагает квартирами разных форматов площадью 31-100 кв.м: от студий до четырехкомнатных. В каждом объекте панорамное остекление, потолки до 3 м и продуманная п...
30 июн 2024 / 13:02
30 июн 2024 / 13:02
ВИРА-Строй (зас...
21
Продам: Студию, 31 м², 27/30 эт.
7 250 000 ₽
ЖК Grando — это ультрасовременный дом-небоскреб бизнес-класса в самом центре Новосибирска по адресу ул.Фрунзе, 1.Объект высотой 30 этажей располагает квартирами разных форматов площадью 31-100 кв.м: от студий до четырехкомнатных. В каждом объекте панорамное остекление, потолки до 3 м и продуманная п...
30 июн 2024 / 17:37
30 июн 2024 / 17:37
ВИРА-Строй (зас...
20
Продам: 2-к квартиру, 55 м², 30/30 эт.
11 500 000 ₽
ЖК Grando — это ультрасовременный дом-небоскреб бизнес-класса в самом центре Новосибирска по адресу ул.Фрунзе, 1.Объект высотой 30 этажей располагает квартирами разных форматов площадью 31-100 кв.м: от студий до четырехкомнатных. В каждом объекте панорамное остекление, потолки до 3 м и продуманная п...
30 июн 2024 / 18:29
30 июн 2024 / 18:29
ВИРА-Строй (зас...
20
Продам: Студию, 45 м², 29/30 эт.
8 000 000 ₽
Продается 2К-студия, на 29 этаже, в ЖК GRANDO, Дзержинского района г. Новосибирска.Дом находится рядом с центром города, расположен в районе с развитой инфраструктурой: до станции метро Берёзовая роща всего 8 минуты пешком, до парка Берёзовая роща всего 10 минут, до ТРЦ Сибирский Молл - 3 минуты, Хо...
9 авг 2024 / 11:38
9 авг 2024 / 11:38
Николай Антипов...
16
Продам: Студию, 86 м², 29/30 эт.
12 000 000 ₽
Продается 3К-студия, на 29 этаже, в ЖК GRANDO, Дзержинского района г. Новосибирска.Дом находится рядом с центром города, расположен в районе с развитой инфраструктурой: до станции метро Берёзовая роща всего 8 минуты пешком, до парка Берёзовая роща всего 10 минут, до ТРЦ Сибирский Молл - 3 минуты, Хо...
9 авг 2024 / 13:19
9 авг 2024 / 13:19
Николай Антипов...
10
Продам: 2-к квартиру, 55 м², 17/30 эт.
9 050 000 ₽
Живите в центре и будьте на высоте Дом на сдаче, высокая степень готовности В квартире панорамное остекление и продуманная планировка, позволяющая создать свое пространство для жизни.На территории есть: подземный паркинг, коворкинг для жителей дома, стандартные и увеличенные машиноместа, велопарко...
20 сент 2024 / 08:21
20 сент 2024 / 08:21
Екатерина Запор...
17
Продам: 1-к квартиру, 40 м², 8/30 эт.
8 200 000 ₽
2-х комнатная квартира- студия с эргономичной планировкой Квартира от инвестора (физическое лицо). Вариант РЕАЛЬНЫЙ Преимущества объекта:- ультрасовременный небоскреб бизнес-класса в центре Новосибирска;- футуристичая архитектурная концепция;- высотность и большая площадь остекления;- современный ди...
10 окт 2024 / 11:47
10 окт 2024 / 11:47
Наталья Романен...
10
Продам: 2-к квартиру, 49 м², 30/30 эт.
9 750 000 ₽
Предлагается в продажу шикарная видовая квартира в комплексе комфорт плюс класса светлая квартира на 30 этаже на две стороны Мoнолитно-киpпичный жилой дом Грандо удачно pаcположился в сердцe Hовocибиpcкa по улице Фрунзe в Дзeржинскoм рaйoне. Дом уже начал возвoдитьcя надежным заcтройщиком ВИРА-Cтрo...
7 ноя 2024 / 12:32
7 ноя 2024 / 12:32
Бояркин Илья (Э...
13
Продам: 2-к квартиру, 53 м², 30/30 эт.
8 850 000 ₽
ЖК Grando — это ультрасовременный дом-небоскреб бизнес-класса в самом центре Новосибирска по адресу ул. Фрунзе, 1. Объект высотой 30 этажей располагает квартирами разных форматов площадью 31-100 кв. м: от студий до четырехкомнатных. В каждом объекте панорамное остекление, потолки до 3 м и продума...
13 янв 2025 / 19:30
13 янв 2025 / 19:30
VIRA (застройщи...
17
Продам: 1-к квартиру, 41 м², 15/30 эт.
8 180 000 ₽
Полноценная однокомнатная квартира, которую можно рассматривать как 2-х комнатную квартиру-студию. Вариант РЕАЛЬНЫЙ Дом СДАН Ключи ПОЛУЧЕНЫ Право собственности ЗАРЕГИСТРИРОВАНО Преимущества объекта: - ультрасовременный небоскреб бизнес-класса в центре Новосибирска; - футуристичная архитектурная ко...
18 июн 2025 / 00:46
18 июн 2025 / 00:46
Наталья Романен...
14